Accueil > Location T2 > Barjouville (28630) > 635 €CC

Logement étudiant à Barjouville

Calculer vos aides

Location T2 à Barjouville - Vide

635€ /mois cc
Ajouter au coup de coeur

Type de location : Location classique - Meublé : NonCalculez votre aide

Disponibilités : 25/12/2025
Disponibilités : 25/12/2025
Visite virtuelle
Logement étudiant T2 à Barjouville (28630) 1/2
Disponibilités : 25/12/2025
Afficher le numéro de téléphone
Demande d'informations

Demande d'informations

Délai de réponse moyen: 24-48h

Je n'ai pas de garant
Recevoir les annonces similaires par email

Informations et réservations

Délai de réponse moyen: 24-48h

Je n'ai pas de garant
Recevoir les annonces similaires par email

LE LOGEMENT

Type de réservation:Location classique
Type de bien:T2
Ameublement:Vide
Classe énergétique:NC
GES:NC
Colocation possible:Non

DESCRIPTION

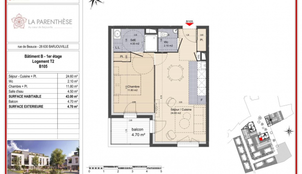
A BARJOUVILLE, dans la résidence neuve LA PARENTHESE, nous vous proposons ce T2 de 43m² situé au premier étage. Il se compose d'un séjour/cuisine avec placard et accès balcon, d'un WC séparé, d'une salle d'eau ainsi que d'une chambre avec placard. Deux places de parking complètent le lot. Chauffage et eau chaude individuels gaz. Entretien parties communes, entretien ascenseur, compris dans les provisions sur charges mensuelles et donnant lieu à une régularisation annuelle. Les honoraires de location TTC (à la charge du locataire) incluent le montant de rédaction des états des lieux facturé pour 129 euros TTC, après réalisation lors de l'entrée dans les lieux. Disponibilité prévisionnelle courant Novembre 2025. Plus de détails sur notre site AFEDIM.
Les informations sur les risques auxquels ce bien est exposé sont disponibles sur le site Géorisques :
Référence annonce : 1427042685

GARANTIES ACCEPTÉES
Visale
Garantie Studapart
Garant physique
ALERTE MAIL
Définissez la location que vous recherchez et nous vous enverrons par email toutes les annonces correspondantes
QUARTIER ET TRANSPORTS (Attention: l'adresse et le quartier de ce bien n'ont pas été communiqués par l'annonceur)
POUR VOUS AIDER
Trouvez la CAF à Barjouville
Résidences étudiantes à Barjouville
Trouvez un job à proximité
Financez votre logement
Découvrir Barjouville
A quelles aides avez-vous droit ?
Simulation APL
Signaler un probleme
BIENS SIMILAIRES
Logement étudiant Location T3 Vide Le Coudray (28630) Location T3 Vide Le Coudray (28630) A partir de 867€
Logement étudiant Location T2 Vide Barjouville (28630) Location T2 Vide Barjouville (28630) A partir de 590€
Logement étudiant Location T2 Vide Le Coudray (28630) Location T2 Vide Le Coudray (28630) A partir de 575€
Besoin d'un logement à Barjouville ?
Demande d'informations et réservations
Les aides au logement
Financement étudiant
635€ CC