Accueil > Location T2 > Banvillars (90800) > 522 €CC

Logement étudiant à Banvillars

Calculer vos aides

Location T2 à Banvillars - Vide

522€ /mois cc
Ajouter au coup de coeur

Type de location : Location classique - Meublé : NonCalculez votre aide

Disponibilités : 05/03/2026
Disponibilités : 05/03/2026
Visite virtuelle
Logement étudiant T2 à Banvillars (90800) 1/2
Disponibilités : 05/03/2026
Afficher le numéro de téléphone
Demande d'informations

Demande d'informations

Délai de réponse moyen: 24-48h

Je n'ai pas de garant
Recevoir les annonces similaires par email

Informations et réservations

Délai de réponse moyen: 24-48h

Je n'ai pas de garant
Recevoir les annonces similaires par email

LE LOGEMENT

Type de réservation:Location classique
Type de bien:T2
Ameublement:Vide
Classe énergétique:NC
GES:NC
Colocation possible:Non

DESCRIPTION

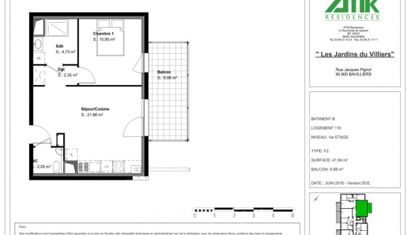
A BAVILLIERS, dans la résidence LES JARDINS DU VILLIERS , nous vous proposons un appartement T2 N° B110 situé au 1er étage d'une superficie de ² comprenant : une pièce de vie avec cuisine aménagée et équipée (plaque, hotte, four, lave vaisselle) ouverte sur séjour et donnant sur un balcon de ², une chambre de ², une salle d'eau avec douche et meuble vasque, WC séparés. Chauffage et eau chaude en individuel gaz. Eau froide, entretien parties communes, entretien ascenseur et espaces verts communs, compris dans les provisions sur charges mensuelles et donnant lieu à une régularisation annuelle. Les honoraires de location TTC (à la charge du locataire) incluent le montant de rédaction des états des lieux facturé pour 127 euros TTC, après réalisation de l'entrée dans les lieux. Pour plus de détails sur ce logement, vous pouvez consulter la fiche descriptive de ce bien sur notre site internet AFEDIM. Disponibilité au 01/04/2026
Les informations sur les risques auxquels ce bien est exposé sont disponibles sur le site Géorisques :
Référence annonce : 1427192961

GARANTIES ACCEPTÉES
Visale
Garantie Studapart
Garant physique
ALERTE MAIL
Définissez la location que vous recherchez et nous vous enverrons par email toutes les annonces correspondantes
QUARTIER ET TRANSPORTS (Attention: l'adresse et le quartier de ce bien n'ont pas été communiqués par l'annonceur)
POUR VOUS AIDER
Trouvez la CAF à Banvillars
Résidences étudiantes à Banvillars
Trouvez un job à proximité
Financez votre logement
Découvrir Banvillars
A quelles aides avez-vous droit ?
Simulation APL
Signaler un probleme
BIENS SIMILAIRES
Logement étudiant Location T4 Vide Argiésans (90800) Location T4 Vide Argiésans (90800) A partir de 1 310€
Logement étudiant Location T3 Vide Argiésans (90800) Location T3 Vide Argiésans (90800) A partir de 800€
Logement étudiant Location T5 Vide Argiésans (90800) Location T5 Vide Argiésans (90800) A partir de 1 380€
Besoin d'un logement à Banvillars ?
Demande d'informations et réservations
Les aides au logement
Financement étudiant
522€ CC