Accueil > Location T2 > Auray (56400) > 509 €CC

Logement étudiant à Auray

Calculer vos aides

Location T2 à Auray - Vide

509€ /mois cc
Ajouter au coup de coeur

Type de location : Location classique - Meublé : NonCalculez votre aide

Disponibilités : 18/02/2026
Disponibilités : 18/02/2026
Visite virtuelle
Logement étudiant T2 à Auray (56400) 1/2
Disponibilités : 18/02/2026
Afficher le numéro de téléphone
Demande d'informations

Demande d'informations

Délai de réponse moyen: 24-48h

Je n'ai pas de garant
Recevoir les annonces similaires par email

Informations et réservations

Délai de réponse moyen: 24-48h

Je n'ai pas de garant
Recevoir les annonces similaires par email

LE LOGEMENT

Type de réservation:Location classique
Type de bien:T2
Ameublement:Vide
Classe énergétique:NC
GES:NC
Colocation possible:Non

DESCRIPTION

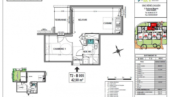
A Auray, au coeur d'un quartier pavillonnaire à proximité des activités tertiaires, des écoles. Dans un quartier boisé et à proximité des rives du Loch. Dans la résidence LES HAUTS DU LOC'H , nous vous proposons un appartement de type T2 n°B005 de ² situé au RDC de la résidence. Il comprend une entrée desservant un séjour avec coin cuisine donnant sur une terrasse de m² et un jardin de 19m², une chambre, une salle d'eau avec wc. Eau chaude et chauffage individuel gaz. Entretien parties communes, entretien ascenseur et espaces verts communs, compris dans les provisions sur charges mensuelles et donnant lieu à une régularisation annuelle. Le montant des honoraires de location (visite, constitution dossier, bail) est facturé directement au locataire par le partenaire pour 343 euros TTC. Le montant des honoraires de rédaction des états des lieux est facturé par AFEDIM Gestion Immobilière pour 128 euros TTC. Plus d'infos sur AFEDIM LOCATION.
Les informations sur les risques auxquels ce bien est exposé sont disponibles sur le site Géorisques :
Référence annonce : 1427158757

GARANTIES ACCEPTÉES
Visale
Garantie Studapart
Garant physique
ALERTE MAIL
Définissez la location que vous recherchez et nous vous enverrons par email toutes les annonces correspondantes
QUARTIER ET TRANSPORTS (Attention: l'adresse et le quartier de ce bien n'ont pas été communiqués par l'annonceur)
POUR VOUS AIDER
Trouvez la CAF à Auray
Résidences étudiantes à Auray
Trouvez un job à proximité
Financez votre logement
Liste des écoles à proximité
Découvrir Auray
A quelles aides avez-vous droit ?
Simulation APL
Signaler un probleme
BIENS SIMILAIRES
Logement étudiant Location T2 Vide Auray (56400) Location T2 Vide Auray (56400) A partir de 630€
Logement étudiant Location T3 Vide Auray (56400) Location T3 Vide Auray (56400) A partir de 880€
Logement étudiant Location Studio Vide Auray (56400) Location Studio Vide Auray (56400) A partir de 550€
Besoin d'un logement à Auray ?
Demande d'informations et réservations
Les aides au logement
Financement étudiant
509€ CC