Accueil > Location T2 > Aulnoy lez Valenciennes (59300) > 499 €CC

Logement étudiant à Aulnoy lez Valenciennes

Calculer vos aides

Location T2 à Aulnoy lez Valenciennes - Vide

499€ /mois cc
Ajouter au coup de coeur

Type de location : Location classique - Meublé : NonCalculez votre aide

Disponibilités : 15/04/2026
Disponibilités : 15/04/2026
Visite virtuelle
Logement étudiant T2 à Aulnoy lez Valenciennes (59300) 1/2
Disponibilités : 15/04/2026
Afficher le numéro de téléphone
Demande d'informations

Demande d'informations

Délai de réponse moyen: 24-48h

Je n'ai pas de garant
Recevoir les annonces similaires par email

Informations et réservations

Délai de réponse moyen: 24-48h

Je n'ai pas de garant
Recevoir les annonces similaires par email

LE LOGEMENT

Type de réservation:Location classique
Type de bien:T2
Ameublement:Vide
Classe énergétique:NC
GES:NC
Colocation possible:Non

DESCRIPTION

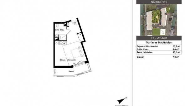
A VALENCIENNES, dans la résidence neuve LES LUMIERES DE L'ESCAUT, proche des commodités, à 5 minutes en voiture du centre-ville. Venez découvrir cet appartement T1 n A2-601 de ² avec un balcon de 7m², situé au 6ème étage, avec ascenseur. Il comprend, un séjour/cuisine de 26m², et une salle d'eau avec WC. Eau chaude et chauffage collectif gaz. Entretien parties communes, ascenseur et espaces verts communs, compris dans les provisions sur charges mensuelles et donnant lieu à une régularisation annuelle. Les honoraires de location de 338 euros TTC (à la charge du locataire) incluent le montant de rédaction des états des lieux facturé pour 92 euros TTC, après réalisation lors de l'entrée dans les lieux. Plus de détails sur notre site AFEDIM.
Les informations sur les risques auxquels ce bien est exposé sont disponibles sur le site Géorisques :
Référence annonce : 1427284569

BIENS SIMILAIRES
Logement étudiant Location T4 Meublé Valenciennes (59300) Location T4 Meublé Valenciennes (59300) A partir de 865€
Logement étudiant Location T2 Meublé Valenciennes (59300) Location T2 Meublé Valenciennes (59300) A partir de 540€
Logement étudiant Location T3 Meublé Valenciennes (59300) Location T3 Meublé Valenciennes (59300) A partir de 355€
GARANTIES ACCEPTÉES
Visale
Garantie Studapart
Garant physique
ALERTE MAIL
Définissez la location que vous recherchez et nous vous enverrons par email toutes les annonces correspondantes
QUARTIER ET TRANSPORTS (Attention: l'adresse et le quartier de ce bien n'ont pas été communiqués par l'annonceur)
POUR VOUS AIDER
Trouvez la CAF à Aulnoy lez Valenciennes
Résidences étudiantes à Aulnoy lez Valenciennes
Trouvez un job à proximité
Financez votre logement
Liste des écoles à proximité
Découvrir Aulnoy lez Valenciennes
A quelles aides avez-vous droit ?
Simulation APL
Signaler un probleme
BIENS SIMILAIRES
Logement étudiant Location T3 Vide Aulnoy lez Valenciennes (59300) Location T3 Vide Aulnoy lez Valenciennes (59300) A partir de 780€
Logement étudiant Location T2 Vide Aulnoy lez Valenciennes (59300) Location T2 Vide Aulnoy lez Valenciennes (59300) A partir de 590€
Logement étudiant Location T2 Vide Aulnoy lez Valenciennes (59300) Location T2 Vide Aulnoy lez Valenciennes (59300) A partir de 645€
Besoin d'un logement à Aulnoy lez Valenciennes ?
Demande d'informations et réservations
Les aides au logement
Financement étudiant
499€ CC