Accueil > Location T2 > Aulnoy lez Valenciennes (59300) > 590 €CC

Logement étudiant à Aulnoy lez Valenciennes

Calculer vos aides

Location T2 à Aulnoy lez Valenciennes - Vide

590€ /mois cc
Ajouter au coup de coeur

Type de location : Location classique - Meublé : NonCalculez votre aide

Disponibilités : 12/12/2025
Disponibilités : 12/12/2025
Visite virtuelle
Logement étudiant T2 à Aulnoy lez Valenciennes (59300) 1/2
Disponibilités : 12/12/2025
Afficher le numéro de téléphone
Demande d'informations

Demande d'informations

Délai de réponse moyen: 24-48h

Je n'ai pas de garant
Recevoir les annonces similaires par email

Informations et réservations

Délai de réponse moyen: 24-48h

Je n'ai pas de garant
Recevoir les annonces similaires par email

LE LOGEMENT

Type de réservation:Location classique
Type de bien:T2
Ameublement:Vide
Classe énergétique:NC
GES:NC
Colocation possible:Non

DESCRIPTION

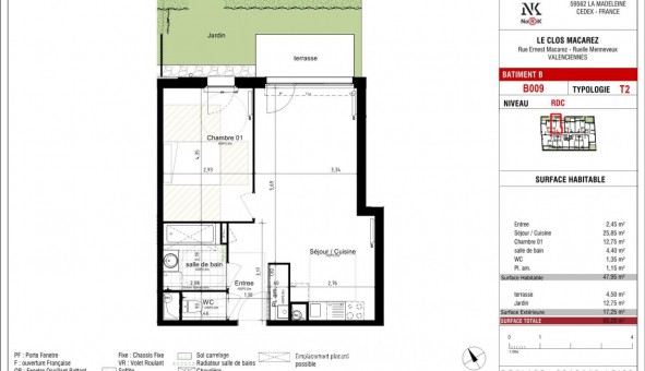
A Valenciennes. RESIDENCE Clos Macarez. Nous vous proposons un appartement T2 d'une superficie de ² situé au rez de chaussée, comprenant : un séjour d'environ ² avec coin cuisine aménagé et équipé (hotte, plaque de cuisson, four), une terrasse de ², une chambre, une salle de bain avec WC séparés. A l'extérieur, un parking n°24. Eau chaude et chauffage individuel au gaz. Entretien parties communes, entretien ascenseur et espaces verts communs, compris dans les provisions sur charges mensuelles et donnant lieu à une régularisation annuelle. Les honoraires de location TTC (à la charge du locataire) incluent le montant de rédaction des états des lieux facturé pour euros TTC, après réalisation lors de l'entrée dans les lieux. Disponible le 01/11/2025. Pour plus de détails sur ce logement, vous pouvez consulter la fiche descriptive de ce bien, sur votre site internet AFEDIM.
Les informations sur les risques auxquels ce bien est exposé sont disponibles sur le site Géorisques :
Référence annonce : 1427013448

BIENS SIMILAIRES
Logement étudiant Location T2 Meublé Valenciennes (59300) Location T2 Meublé Valenciennes (59300) A partir de 1 600€
Logement étudiant Location Studio Meublé Valenciennes (59300) Location Studio Meublé Valenciennes (59300) A partir de 360€
Logement étudiant Location T2 Meublé Aulnoy lez Valenciennes (59300) Location T2 Meublé Aulnoy lez Valenciennes (59300) A partir de 520€
GARANTIES ACCEPTÉES
Visale
Garantie Studapart
Garant physique
ALERTE MAIL
Définissez la location que vous recherchez et nous vous enverrons par email toutes les annonces correspondantes
QUARTIER ET TRANSPORTS (Attention: l'adresse et le quartier de ce bien n'ont pas été communiqués par l'annonceur)
POUR VOUS AIDER
Trouvez la CAF à Aulnoy lez Valenciennes
Résidences étudiantes à Aulnoy lez Valenciennes
Trouvez un job à proximité
Financez votre logement
Liste des écoles à proximité
Découvrir Aulnoy lez Valenciennes
A quelles aides avez-vous droit ?
Simulation APL
Signaler un probleme
BIENS SIMILAIRES
Logement étudiant Location T2 Meublé Valenciennes (59300) Location T2 Meublé Valenciennes (59300) A partir de 1 600€
Logement étudiant Location Studio Vide Aulnoy lez Valenciennes (59300) Location Studio Vide Aulnoy lez Valenciennes (59300) A partir de 480€
Logement étudiant Location T3 Vide Aulnoy lez Valenciennes (59300) Location T3 Vide Aulnoy lez Valenciennes (59300) A partir de 690€
Besoin d'un logement à Aulnoy lez Valenciennes ?
Demande d'informations et réservations
Les aides au logement
Financement étudiant
590€ CC