Accueil > Location T2 > Arras (62000) > 571 €CC

Logement étudiant à Arras

Calculer vos aides

Location T2 à Arras - Vide

571€ /mois cc
Ajouter au coup de coeur

Type de location : Location classique - Meublé : NonCalculez votre aide

Disponibilités : 18/04/2026
Disponibilités : 18/04/2026
Visite virtuelle
Logement étudiant T2 à Arras (62000) 1/2
Disponibilités : 18/04/2026
Afficher le numéro de téléphone
Demande d'informations

Demande d'informations

Délai de réponse moyen: 24-48h

Je n'ai pas de garant
Recevoir les annonces similaires par email

Informations et réservations

Délai de réponse moyen: 24-48h

Je n'ai pas de garant
Recevoir les annonces similaires par email

LE LOGEMENT

Type de réservation:Location classique
Type de bien:T2
Ameublement:Vide
Classe énergétique:NC
GES:NC
Colocation possible:Non

DESCRIPTION

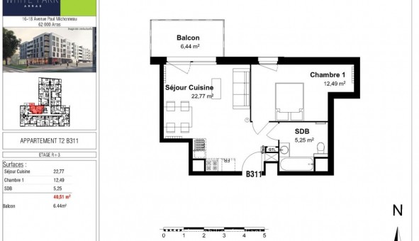
A ARRAS, dans la résidence WHITE PARK, un appartement T2 n° B311 de 40m², situé au 3ème étage. Il comprend, un séjour avec coin cuisine donnant sur un balcon, une chambre, et une salle de bains avec WC. Cet appartement dispose d'une place de stationnement N°13. L'eau chaude est collective et le chauffage est individuel. Entretien parties communes, entretien ascenseur et espaces verts communs, compris dans les provisions sur charges mensuelles et donnant lieu à une régularisation annuelle. Les honoraires de location TTC (à la charge du locataire) incluent le montant de rédaction des états des lieux facturé pour 122 euros TTC, après réalisation lors de l'entrée dans les lieux. Disponible le 11/04/2026. Pour plus de détails sur ce logement, vous pouvez consulter la fiche descriptive de ce bien, sur votre site internet AFEDIM
Les informations sur les risques auxquels ce bien est exposé sont disponibles sur le site Géorisques :
Référence annonce : 1427291603

GARANTIES ACCEPTÉES
Visale
Garantie Studapart
Garant physique
ALERTE MAIL
Définissez la location que vous recherchez et nous vous enverrons par email toutes les annonces correspondantes
QUARTIER ET TRANSPORTS (Attention: l'adresse et le quartier de ce bien n'ont pas été communiqués par l'annonceur)
POUR VOUS AIDER
Trouvez la CAF à Arras
Résidences étudiantes à Arras
Trouvez un job à proximité
Financez votre logement
Liste des écoles à proximité
Découvrir Arras
A quelles aides avez-vous droit ?
Simulation APL
Signaler un probleme
BIENS SIMILAIRES
Logement étudiant Location Studio Vide Arras (62000) Location Studio Vide Arras (62000) A partir de 490€
Logement étudiant Location Studio Vide Arras (62000) Location Studio Vide Arras (62000) A partir de 648€
Logement étudiant Location T4 Vide Arras (62000) Location T4 Vide Arras (62000) A partir de 1 150€
Besoin d'un logement à Arras ?
Demande d'informations et réservations
Les aides au logement
Financement étudiant
571€ CC