Accueil > Location T2 > Arras (62000) > 518 €CC

Logement étudiant à Arras

Calculer vos aides

Location T2 à Arras - Vide

518€ /mois cc
Ajouter au coup de coeur

Type de location : Location classique - Meublé : NonCalculez votre aide

Disponibilités : 01/11/2025
Disponibilités : 01/11/2025
Visite virtuelle
Logement étudiant T2 à Arras (62000) 1/2
Disponibilités : 01/11/2025
Afficher le numéro de téléphone
Demande d'informations

Demande d'informations

Délai de réponse moyen: 24-48h

Je n'ai pas de garant
Recevoir les annonces similaires par email

Informations et réservations

Délai de réponse moyen: 24-48h

Je n'ai pas de garant
Recevoir les annonces similaires par email

LE LOGEMENT

Type de réservation:Location classique
Type de bien:T2
Ameublement:Vide
Classe énergétique:NC
GES:NC
Colocation possible:Non

DESCRIPTION

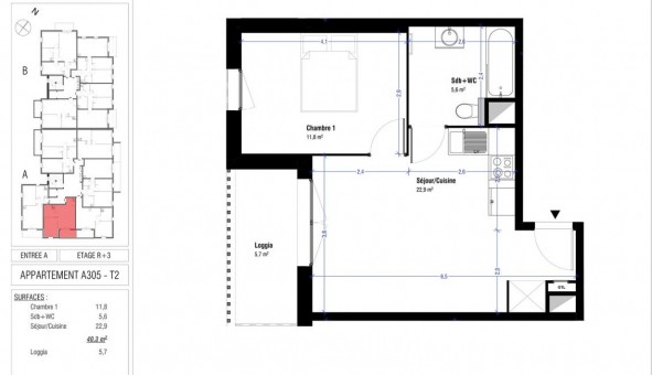
ARRAS, au cour de la ville, dans la résidence récente VILLA LORETTE, nous vous proposons un appartement T2 (n°A305) d'une superficie de 40,30 m² situé au 3ème étage avec ascenseur. Il se compose d'un séjour cuisine spacieux de ² avec cuisine équipée (plaques de cuisson, hotte, four) donnant sur une loggia de ², d'une salle de bain avec WC et d'une chambre de 11,8m². Au sous-sol, un parking n°22. Chauffage électrique individuel. Eau froide et eau chaude individuelle. Entretien ascenseur, entretien parties communes et espaces verts communs, compris dans les provisions sur charges mensuelles et donnant lieu à une régularisation annuelle. Les honoraires de location TTC (à la charge du locataire) incluent le montant de rédaction des états des lieux facturé pour 120,00 euros TTC, après réalisation lors de l'entrée. Disponibilité au 04/10/2025.
Pour plus de détails sur ce logement, vous pouvez consulter la fiche descriptive de ce bien, sur votre site internet AFEDIM.
Les informations sur les risques auxquels ce bien est exposé sont disponibles sur le site Géorisques :
Référence annonce : 1426918058

GARANTIES ACCEPTÉES
Visale
Garantie Studapart
Garant physique
ALERTE MAIL
Définissez la location que vous recherchez et nous vous enverrons par email toutes les annonces correspondantes
QUARTIER ET TRANSPORTS (Attention: l'adresse et le quartier de ce bien n'ont pas été communiqués par l'annonceur)
POUR VOUS AIDER
Trouvez la CAF à Arras
Résidences étudiantes à Arras
Trouvez un job à proximité
Financez votre logement
Liste des écoles à proximité
Découvrir Arras
A quelles aides avez-vous droit ?
Simulation APL
Signaler un probleme
BIENS SIMILAIRES
Logement étudiant Location T4 Vide Arras (62000) Location T4 Vide Arras (62000) A partir de 930€
Logement étudiant Location T2 Vide Arras (62000) Location T2 Vide Arras (62000) A partir de 680€
Logement étudiant Location Studio Vide Arras (62000) Location Studio Vide Arras (62000) A partir de 530€
Besoin d'un logement à Arras ?
Demande d'informations et réservations
Les aides au logement
Financement étudiant
518€ CC