Accueil > Location T2 > Armentières (59280) > 611 €CC

Logement étudiant à Armentières

Calculer vos aides

Location T2 à Armentières - Vide

611€ /mois cc
Ajouter au coup de coeur

Type de location : Location classique - Meublé : NonCalculez votre aide

Disponibilités : 06/12/2025
Disponibilités : 06/12/2025
Visite virtuelle
Logement étudiant T2 à Armentières (59280) 1/2
Disponibilités : 06/12/2025
Afficher le numéro de téléphone
Demande d'informations

Demande d'informations

Délai de réponse moyen: 24-48h

Je n'ai pas de garant
Recevoir les annonces similaires par email

Informations et réservations

Délai de réponse moyen: 24-48h

Je n'ai pas de garant
Recevoir les annonces similaires par email

LE LOGEMENT

Type de réservation:Location classique
Type de bien:T2
Ameublement:Vide
Classe énergétique:NC
GES:NC
Colocation possible:Non

DESCRIPTION

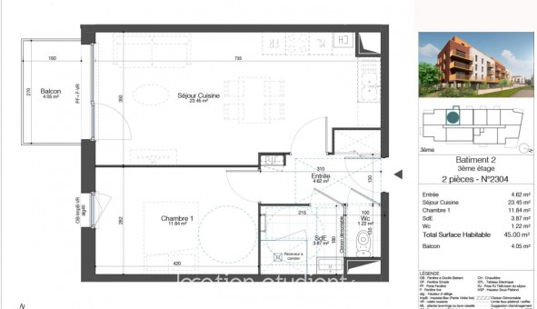
A ARMENTIERES, dans la résidence neuve PRISME, nous vous proposons ce T2 de ² n°2304 situé au troisième étage avec ascenseur. Il se compose, d'une entrée, d'un séjour cuisine donnant accès au balcon de , d'une salle d'eau, d'un WC séparé ainsi que d'une chambre de ². Une place de parking complète le lot 36. Chauffage et eau chaude individuelle gaz. Entretien parties communes, entretien ascenseur, compris dans les provisions sur charges mensuelles et donnant lieu à une régularisation annuelle. Les honoraires de location TTC (à la charge du locataire) incluent le montant de rédaction des états des lieux facturé pour 134 euros TTC, après réalisation lors de l'entrée dans les lieux. Plus de détails sur notre site AFEDIM. Logement disponible au 01/03/2026. DPE à venir.
Les informations sur les risques auxquels ce bien est exposé sont disponibles sur le site Géorisques :
Référence annonce : 1427000278

GARANTIES ACCEPTÉES
Visale
Garantie Studapart
Garant physique
ALERTE MAIL
Définissez la location que vous recherchez et nous vous enverrons par email toutes les annonces correspondantes
QUARTIER ET TRANSPORTS (Attention: l'adresse et le quartier de ce bien n'ont pas été communiqués par l'annonceur)
POUR VOUS AIDER
Trouvez la CAF à Armentières
Résidences étudiantes à Armentières
Trouvez un job à proximité
Financez votre logement
Liste des écoles à proximité
Découvrir Armentières
A quelles aides avez-vous droit ?
Simulation APL
Signaler un probleme
BIENS SIMILAIRES
Logement étudiant Location T2 Vide Armentières (59280) Location T2 Vide Armentières (59280) A partir de 601€
Logement étudiant Location T2 Vide Armentières (59280) Location T2 Vide Armentières (59280) A partir de 614€
Logement étudiant Location T2 Vide Armentières (59280) Location T2 Vide Armentières (59280) A partir de 603€
Besoin d'un logement à Armentières ?
Demande d'informations et réservations
Les aides au logement
Financement étudiant
611€ CC