Accueil > Location T2 > Angers (49000) > 651 €CC

Logement étudiant à Angers

Calculer vos aides

Location T2 à Angers - Vide

651€ /mois cc
Ajouter au coup de coeur

Type de location : Location classique - Meublé : NonCalculez votre aide

Disponibilités : 06/03/2026
Disponibilités : 06/03/2026
Visite virtuelle
Logement étudiant T2 à Angers (49000) 1/2
Disponibilités : 06/03/2026
Afficher le numéro de téléphone
Demande d'informations

Demande d'informations

Délai de réponse moyen: 24-48h

Je n'ai pas de garant
Recevoir les annonces similaires par email

Informations et réservations

Délai de réponse moyen: 24-48h

Je n'ai pas de garant
Recevoir les annonces similaires par email

LE LOGEMENT

Type de réservation:Location classique
Type de bien:T2
Ameublement:Vide
Classe énergétique:NC
GES:NC
Colocation possible:Non

DESCRIPTION

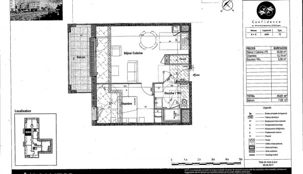
ANGERS. Dans la résidence Confidence, nous vous proposons un appartement T2 n°A304 au 3ème étage du bâtiment A, de ². Il se compose d'une entrée avec placard, d'un séjour avec cuisine ouverte de ² donnant sur un balcon de ² d'une chambre de ² et d'une salle d'eau avec WC. Une place de parking n°30 au sous-sol est également à disposition. Eau chaude et chauffage individuels au gaz. Entretien parties communes, entretien ascenseur et espaces verts communs, compris dans les provisions sur charges mensuelles et donnant lieu à une régularisation annuelle. Les honoraires de location TTC (à la charge du locataire) incluent le montant de rédaction des états des lieux facturé pour 133 euros TTC, après réalisation lors de l'entrée dans les lieux. Pour plus de détails sur ce logement, vous pouvez consulter la fiche descriptive de ce bien, sur votre site internet AFEDIM
Les informations sur les risques auxquels ce bien est exposé sont disponibles sur le site Géorisques :
Référence annonce : 1427193736

BIENS SIMILAIRES
Logement étudiant Location Studio Meublé Angers (49000) Location Studio Meublé Angers (49000) A partir de 620€
Logement étudiant Location Studio Meublé Angers (49000) Location Studio Meublé Angers (49000) A partir de 590€
Logement étudiant Location Studio Meublé Angers (49000) Location Studio Meublé Angers (49000) A partir de 665€
GARANTIES ACCEPTÉES
Visale
Garantie Studapart
Garant physique
ALERTE MAIL
Définissez la location que vous recherchez et nous vous enverrons par email toutes les annonces correspondantes
QUARTIER ET TRANSPORTS (Attention: l'adresse et le quartier de ce bien n'ont pas été communiqués par l'annonceur)
POUR VOUS AIDER
Trouvez la CAF à Angers
Résidences étudiantes à Angers
Trouvez un job à proximité
Financez votre logement
Liste des écoles à proximité
Découvrir Angers
A quelles aides avez-vous droit ?
Simulation APL
Signaler un probleme
BIENS SIMILAIRES
Logement étudiant Location T2 Vide Angers (49000) Location T2 Vide Angers (49000) A partir de 531€
Logement étudiant Location T3 Vide Angers (49000) Location T3 Vide Angers (49000) A partir de 778€
Logement étudiant Location T2 Vide Angers (49000) Location T2 Vide Angers (49000) A partir de 527€
Besoin d'un logement à Angers ?
Demande d'informations et réservations
Les aides au logement
Financement étudiant
651€ CC