Accueil > Location T2 > Amiens (80090) > 399 €CC

Logement étudiant à Amiens

Calculer vos aides

Location T2 à Amiens - Vide

399€ /mois cc
Ajouter au coup de coeur

Type de location : Location classique - Meublé : NonCalculez votre aide

Disponibilités : 18/10/2025
Disponibilités : 18/10/2025
Visite virtuelle
Logement étudiant T2 à Amiens (80090) 1/2
Disponibilités : 18/10/2025
Afficher le numéro de téléphone
Demande d'informations

Demande d'informations

Délai de réponse moyen: 24-48h

Je n'ai pas de garant
Recevoir les annonces similaires par email

Informations et réservations

Délai de réponse moyen: 24-48h

Je n'ai pas de garant
Recevoir les annonces similaires par email

LE LOGEMENT

Type de réservation:Location classique
Type de bien:T2
Ameublement:Vide
Classe énergétique:NC
GES:NC
Colocation possible:Non

DESCRIPTION

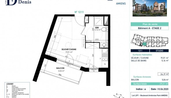
A AMIENS - Dans la résidence "GREEN WOOD" au cour de la ZAC INTERCAMPUS, nous vous proposons un appartement T1 N°1211 situé au 2ème étage comprenant une pièce de vie avec placard et coin kitchenette donnant sur un balcon et une salle d'eau. Cet appartement dispose également d'une place de stationnement N°1. Chauffage et eau chaude collective au gaz. L'entretien des parties communes et espaces verts compris dans les provisions sur charges mensuelles et donnant lieu à une régularisation annuelle. Disponible le 13 juillet 2025. Les honoraires de location TTC (à la charge du locataire) incluent le montant de rédaction des états des lieux facturé pour 72 euros TTC, après réalisation lors de l'entrée dans les lieux.
Pour plus de détails sur ce logement, vous pouvez consulter la fiche descriptive de ce bien, sur notre site internet AFEDIM.
Les informations sur les risques auxquels ce bien est exposé sont disponibles sur le site Géorisques :
Référence annonce : 1426889880

BIENS SIMILAIRES
Logement étudiant Location Studio Meublé Amiens (80090) Location Studio Meublé Amiens (80090) A partir de 500€
Logement étudiant Location Studio Meublé Amiens (80090) Location Studio Meublé Amiens (80090) A partir de 500€
Logement étudiant Location Studio Meublé Amiens (80090) Location Studio Meublé Amiens (80090) A partir de 520€
GARANTIES ACCEPTÉES
Visale
Garantie Studapart
Garant physique
ALERTE MAIL
Définissez la location que vous recherchez et nous vous enverrons par email toutes les annonces correspondantes
QUARTIER ET TRANSPORTS (Attention: l'adresse et le quartier de ce bien n'ont pas été communiqués par l'annonceur)
POUR VOUS AIDER
Trouvez la CAF à Amiens
Résidences étudiantes à Amiens
Trouvez un job à proximité
Financez votre logement
Liste des écoles à proximité
Découvrir Amiens
A quelles aides avez-vous droit ?
Simulation APL
Signaler un probleme
BIENS SIMILAIRES
Logement étudiant Location Studio Meublé Amiens (80090) Location Studio Meublé Amiens (80090) A partir de 500€
Logement étudiant Location Studio Vide Amiens (80090) Location Studio Vide Amiens (80090) A partir de 600€
Logement étudiant Location T2 Vide Amiens (80090) Location T2 Vide Amiens (80090) A partir de 551€
Besoin d'un logement à Amiens ?
Demande d'informations et réservations
Les aides au logement
Financement étudiant
399€ CC