Accueil > Location T2 > Agde (34300) > 631 €CC

Logement étudiant à Agde

Calculer vos aides

Location T2 à Agde - Vide

631€ /mois cc
Ajouter au coup de coeur

Type de location : Location classique - Meublé : NonCalculez votre aide

Disponibilités : 03/03/2026
Disponibilités : 03/03/2026
Visite virtuelle
Logement étudiant T2 à Agde (34300) 1/2
Disponibilités : 03/03/2026
Afficher le numéro de téléphone
Demande d'informations

Demande d'informations

Délai de réponse moyen: 24-48h

Je n'ai pas de garant
Recevoir les annonces similaires par email

Informations et réservations

Délai de réponse moyen: 24-48h

Je n'ai pas de garant
Recevoir les annonces similaires par email

LE LOGEMENT

Type de réservation:Location classique
Type de bien:T2
Ameublement:Vide
Classe énergétique:NC
GES:NC
Colocation possible:Non

DESCRIPTION

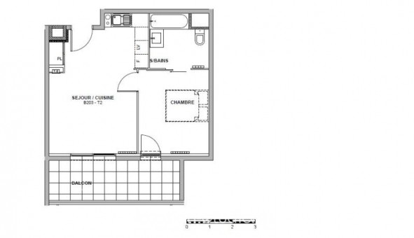
B203 LES TERRASSES DE SOLENE - SYMPATHIQUE T2 DONNANT ENTIEREMENT SUR L'INTERIEUR D'UNE RESIDENCE RECENTE BBC DE STANDING A PROXIMITE DES COMMERCES - TERRASSE DE 10M2 - 2EME ETAGE - Grand séjour et cuisine US équipée et aménagée (meubles hauts et bas + plaques, four et hotte) de , une chambre en sol parquet, SDB aménagée, place de parking privative double. Consommation d'énergie totale entre 250-390EUR par an (prix moyens des énergies indexés au ).

Les informations sur les risques auxquels ce bien est exposé sont disponibles sur le site Géorisques : www. georisques. gouv. fr
Référence annonce : 1427174673

BIENS SIMILAIRES
Logement étudiant Location Studio Meublé Agde (34300) Location Studio Meublé Agde (34300) A partir de 545€
Logement étudiant Location Studio Meublé Agde (34300) Location Studio Meublé Agde (34300) A partir de 398€
Logement étudiant Location Studio Meublé Agde (34300) Location Studio Meublé Agde (34300) A partir de 560€
GARANTIES ACCEPTÉES
Visale
Garantie Studapart
Garant physique
ALERTE MAIL
Définissez la location que vous recherchez et nous vous enverrons par email toutes les annonces correspondantes
QUARTIER ET TRANSPORTS (Attention: l'adresse et le quartier de ce bien n'ont pas été communiqués par l'annonceur)
POUR VOUS AIDER
Trouvez la CAF à Agde
Résidences étudiantes à Agde
Trouvez un job à proximité
Financez votre logement
Liste des écoles à proximité
Découvrir Agde
A quelles aides avez-vous droit ?
Simulation APL
Signaler un probleme
BIENS SIMILAIRES
Logement étudiant Location T3 Vide Agde (34300) Location T3 Vide Agde (34300) A partir de 850€
Logement étudiant Location T2 Vide Agde (34300) Location T2 Vide Agde (34300) A partir de 425€
Logement étudiant Location T3 Vide Agde (34300) Location T3 Vide Agde (34300) A partir de 750€
Besoin d'un logement à Agde ?
Demande d'informations et réservations
Les aides au logement
Financement étudiant
631€ CC