Accueil > Location T2 > Agde (34300) > 574 €CC

Logement étudiant à Agde

Calculer vos aides

Location T2 à Agde - Vide

574€ /mois cc
Ajouter au coup de coeur

Type de location : Location classique - Meublé : NonCalculez votre aide

Disponibilités : 22/12/2025
Disponibilités : 22/12/2025
Visite virtuelle
Logement étudiant T2 à Agde (34300) 1/2
Disponibilités : 22/12/2025
Afficher le numéro de téléphone
Demande d'informations

Demande d'informations

Délai de réponse moyen: 24-48h

Je n'ai pas de garant
Recevoir les annonces similaires par email

Informations et réservations

Délai de réponse moyen: 24-48h

Je n'ai pas de garant
Recevoir les annonces similaires par email

LE LOGEMENT

Type de réservation:Location classique
Type de bien:T2
Ameublement:Vide
Classe énergétique:NC
GES:NC
Colocation possible:Non

DESCRIPTION

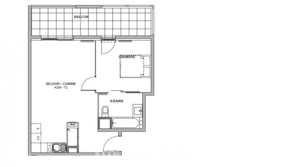
A208 LES TERRASSES DE SOLENE - BEAU T2 EXPO OUEST DE 45M2 AU 2EME ETAGE AVEC TERRASSE DE 12 M2 DANS UNE RESIDENCE RECENTE BBC DE STANDING A PROXIMITE DES COMMERCES - Sup. séjour et cuisine US équipée et aménagée (meubles hauts et bas + plaques, four et hotte) de 29m2, une chambre en sol parquet, SDB aménagée, garage fermé en sous sol sécurisé. Consommation d'énergie totale 333 EUR par an (prix moyens des énergies indexés au ).

Les informations sur les risques auxquels ce bien est exposé sont disponibles sur le site Géorisques : www. georisques. gouv. fr
Référence annonce : 1427026862

BIENS SIMILAIRES
Logement étudiant Location T3 Meublé Agde (34300) Location T3 Meublé Agde (34300) A partir de 1 200€
Logement étudiant Location Studio Meublé Agde (34300) Location Studio Meublé Agde (34300) A partir de 398€
Logement étudiant Location Studio Meublé Agde (34300) Location Studio Meublé Agde (34300) A partir de 560€
GARANTIES ACCEPTÉES
Visale
Garantie Studapart
Garant physique
ALERTE MAIL
Définissez la location que vous recherchez et nous vous enverrons par email toutes les annonces correspondantes
QUARTIER ET TRANSPORTS (Attention: l'adresse et le quartier de ce bien n'ont pas été communiqués par l'annonceur)
POUR VOUS AIDER
Trouvez la CAF à Agde
Résidences étudiantes à Agde
Trouvez un job à proximité
Financez votre logement
Liste des écoles à proximité
Découvrir Agde
A quelles aides avez-vous droit ?
Simulation APL
Signaler un probleme
BIENS SIMILAIRES
Logement étudiant Location T2 Vide Agde (34300) Location T2 Vide Agde (34300) A partir de 505€
Logement étudiant Location T3 Vide Agde (34300) Location T3 Vide Agde (34300) A partir de 890€
Logement étudiant Location Studio Vide Agde (34300) Location Studio Vide Agde (34300) A partir de 528€
Besoin d'un logement à Agde ?
Demande d'informations et réservations
Les aides au logement
Financement étudiant
574€ CC