Accueil > Location T2 > Évry (91000) > 796 €CC

Logement étudiant à Évry

Calculer vos aides

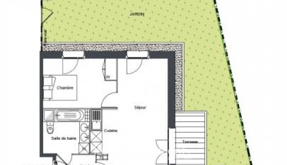
Location T2 à Évry - Vide - 44m²

796€ /mois cc
Ajouter au coup de coeur

Type de location : Location classique - Meublé : NonCalculez votre aide

Disponibilités : 11/05/2026
Disponibilités : 11/05/2026
Visite virtuelle
Logement étudiant T2 à Évry (91000) 1/1
Disponibilités : 11/05/2026
Afficher le numéro de téléphone
Demande d'informations

Demande d'informations

Délai de réponse moyen: 24-48h

Je n'ai pas de garant
Recevoir les annonces similaires par email
Une annonce Logic-Immo

Informations et réservations

Délai de réponse moyen: 24-48h

Je n'ai pas de garant
Recevoir les annonces similaires par email

LE LOGEMENT

Type de réservation:Location classique
Type de bien:T2
Ameublement:Vide
Classe énergétique:NC
GES:NC
Colocation possible:Non

DESCRIPTION

A 5min a pieds de la Gare RER d'EVRY VAL DE SEINE et a proximite des commerces, au sein d'un environnement calme et residentiel dans une residence NEUVE. Appartement 2 pieces en rez-de-jardin : une entree, un sejour avec coin cuisine amenagee et semi-equipee donnant acces a une terrasse et son jardin, une chambre et une salle de bain avec WC. Une place de parking securisee en sous-sol.
Référence annonce : 1423948032

BIENS SIMILAIRES
Logement étudiant Location Duplex Meublé Évry (91000) Location Duplex Meublé Évry (91000) A partir de 490€
Logement étudiant Location Duplex Meublé Évry (91000) Location Duplex Meublé Évry (91000) A partir de 490€
Logement étudiant Location T2 Meublé Ris Orangis (91000) Location T2 Meublé Ris Orangis (91000) A partir de 750€
GARANTIES ACCEPTÉES
Visale
Garantie Studapart
Garant physique
ALERTE MAIL
Définissez la location que vous recherchez et nous vous enverrons par email toutes les annonces correspondantes
QUARTIER ET TRANSPORTS (Attention: l'adresse et le quartier de ce bien n'ont pas été communiqués par l'annonceur)
POUR VOUS AIDER
Trouvez la CAF à Évry
Résidences étudiantes à Évry
Trouvez un job à proximité
Financez votre logement
Liste des écoles à proximité
Découvrir Évry
A quelles aides avez-vous droit ?
Simulation APL
Signaler un probleme
BIENS SIMILAIRES
Logement étudiant Location Studio Meublé Ris Orangis (91000) Location Studio Meublé Ris Orangis (91000) A partir de 799€
Logement étudiant Location T2 Vide Ris Orangis (91000) Location T2 Vide Ris Orangis (91000) A partir de 870€
Logement étudiant Location Studio Vide Évry (91000) Location Studio Vide Évry (91000) A partir de 743€
Besoin d'un logement à Évry ?
Demande d'informations et réservations
Les aides au logement
Financement étudiant
796€ CC