Accueil > Location Studio > Cholet (49280) > 530 €CC

Logement étudiant à Cholet

Calculer vos aides

Location Studio à Cholet - Vide - 30.32m²

530€ /mois cc
Ajouter au coup de coeur

Type de location : Location classique - Meublé : NonCalculez votre aide

Disponibilités : 08/02/2026
Disponibilités : 08/02/2026
Visite virtuelle
Logement étudiant Studio à Cholet (49280) 1/5
Disponibilités : 08/02/2026
Afficher le numéro de téléphone
Demande d'informations

Demande d'informations

Délai de réponse moyen: 24-48h

Je n'ai pas de garant
Recevoir les annonces similaires par email
Une annonce Bien ici

Informations et réservations

Délai de réponse moyen: 24-48h

Je n'ai pas de garant
Recevoir les annonces similaires par email

LE LOGEMENT

Type de réservation:Location classique
Type de bien:Studio
Ameublement:Vide
Classe énergétique:D (de 151 à 230)
GES:NC
Colocation possible:Non

DESCRIPTION

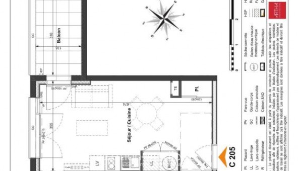
À LOUER : Appartement T1 situé à Cholet, dans le département du Maine-et-Loire (49300). Ce bien immobilier offre une surface habitable de 30 m², idéal pour une personne seule ou un couple cherchant un espace fonctionnel et agréable.

L'intérieur est composé d'une pièce principale, d'une cuisine séparée aménagée et équipée et d'une salle d'eau avec wc.

Situé dans un quartier calme, cet appartement est proche des commodités nécessaires au quotidien, telles que les commerces, les transports en commun et les espaces verts. N'hésitez pas à nous contacter pour plus d'informations ou pour organiser une visite.
Loyer de 530,00 euros par mois charges comprises dont 20,00 euros par mois de provision pour charges (soumis à la régularisation annuelle).
Soit avec Assurance Habitation et Assistance* ( 21.00 euros ) : 551,00 euros.
Les honoraires charge locataire sont de 333,52 euros ( soit 11,00 euros/m² ) dont 90,96 euros pour état des lieux ( soit 3,00 euros/m² ).
Vous pouvez consulter les barèmes d'honoraires à l'adresse suivante :

Montant estimé des dépenses annuelles d'énergie pour un usage standard : entre 504 et 682 euros. Prix moyens des énergies indexés en 2021. Les informations sur les risques auxquels ce bien est exposé sont disponibles sur le site Géorisques : https://www.georisques.gouv.fr. *Service facultatif. Contribution annuelle "attentats" non comprise. Voir conditions en agence.
Référence annonce : 1426927222

BIENS SIMILAIRES
Logement étudiant Location Studio Meublé Cholet (49280) Location Studio Meublé Cholet (49280) A partir de 510€
Logement étudiant Location Studio Meublé Cholet (49280) Location Studio Meublé Cholet (49280) A partir de 480€
Logement étudiant Location T2 Meublé Cholet (49280) Location T2 Meublé Cholet (49280) A partir de 625€
GARANTIES ACCEPTÉES
Visale
Garantie Studapart
Garant physique
ALERTE MAIL
Définissez la location que vous recherchez et nous vous enverrons par email toutes les annonces correspondantes
QUARTIER ET TRANSPORTS (Attention: l'adresse et le quartier de ce bien n'ont pas été communiqués par l'annonceur)
POUR VOUS AIDER
Trouvez la CAF à Cholet
Résidences étudiantes à Cholet
Trouvez un job à proximité
Financez votre logement
Liste des écoles à proximité
Découvrir Cholet
A quelles aides avez-vous droit ?
Simulation APL
Signaler un probleme
BIENS SIMILAIRES
Logement étudiant Location T3 Vide Cholet (49280) Location T3 Vide Cholet (49280) A partir de 617€
Logement étudiant Location T3 Vide Cholet (49280) Location T3 Vide Cholet (49280) A partir de 765€
Logement étudiant Location T2 Vide Cholet (49280) Location T2 Vide Cholet (49280) A partir de 700€
Besoin d'un logement à Cholet ?
Demande d'informations et réservations
Les aides au logement
Financement étudiant
530€ CC