Accueil > Location Chambre > Vitry sur Seine (94400) > 515 €CC

Logement étudiant à Vitry sur Seine

Calculer vos aides

Location Chambre à Vitry sur Seine - Vide

515€ /mois cc
Ajouter au coup de coeur

Type de location : Location classique - Meublé : NonCalculez votre aide

Disponibilités : 15/03/2026
Disponibilités : 15/03/2026
Visite virtuelle
Logement étudiant Chambre à Vitry sur Seine (94400) 1/2
Disponibilités : 15/03/2026
Afficher le numéro de téléphone
Demande d'informations

Demande d'informations

Délai de réponse moyen: 24-48h

Je n'ai pas de garant
Recevoir les annonces similaires par email

Informations et réservations

Délai de réponse moyen: 24-48h

Je n'ai pas de garant
Recevoir les annonces similaires par email

LE LOGEMENT

Type de réservation:Location classique
Type de bien:Chambre
Ameublement:Vide
Classe énergétique:NC
GES:NC
Colocation possible:Non

DESCRIPTION

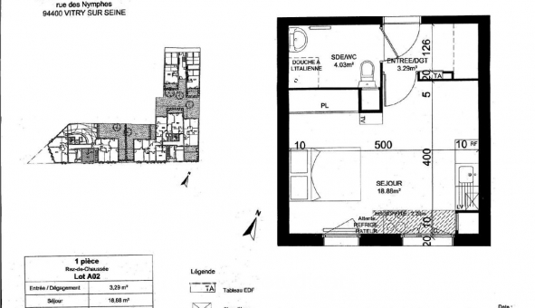
VITRY SUR SEINE - Dans la résidence "Le CONCORDIA", nous proposons un appartement T1 n° A02 d'environ 26 m², au rez-de-chaussée du Bâtiment A, composé d'une entrée/dégagement, salle de séjour/chambre avec cuisine, salle d'eau avec WC. Au sous-sol R-1, un parking n° 85. Eau chaude et chauffage individuel gaz. Eau froide individuelle (abonnement à prendre).
Entretien parties communes, entretien ascenseur et espaces verts communs, compris dans les provisions sur charges mensuelles et donnant lieu à une régularisation annuelle. Les honoraires de location de 343 euros TTC (à la charge du locataire) incluent le montant de rédaction des états des lieux facturé pour 79,00 euros TTC, après réalisation lors de l'entrée dans les lieux. Pour plus de détails sur ce logement, vous pouvez consulter la fiche descriptive de ce bien, sur notre site internet AFEDIM
Les informations sur les risques auxquels ce bien est exposé sont disponibles sur le site Géorisques :
Référence annonce : 1427216477

BIENS SIMILAIRES
Logement étudiant Location T2 Meublé Vitry sur Seine (94400) Location T2 Meublé Vitry sur Seine (94400) A partir de 1 500€
Logement étudiant Location Studio Meublé Vitry sur Seine (94400) Location Studio Meublé Vitry sur Seine (94400) A partir de 680€
Logement étudiant Location T2 Meublé Vitry sur Seine (94400) Location T2 Meublé Vitry sur Seine (94400) A partir de 1 080€
GARANTIES ACCEPTÉES
Visale
Garantie Studapart
Garant physique
ALERTE MAIL
Définissez la location que vous recherchez et nous vous enverrons par email toutes les annonces correspondantes
QUARTIER ET TRANSPORTS (Attention: l'adresse et le quartier de ce bien n'ont pas été communiqués par l'annonceur)
POUR VOUS AIDER
Trouvez la CAF à Vitry sur Seine
Résidences étudiantes à Vitry sur Seine
Trouvez un job à proximité
Financez votre logement
Liste des écoles à proximité
Découvrir Vitry sur Seine
A quelles aides avez-vous droit ?
Simulation APL
Signaler un probleme
BIENS SIMILAIRES
Logement étudiant Location T2 Vide Vitry sur Seine (94400) Location T2 Vide Vitry sur Seine (94400) A partir de 847€
Logement étudiant Location T3 Meublé Vitry sur Seine (94400) Location T3 Meublé Vitry sur Seine (94400) A partir de 1 650€
Logement étudiant Location Studio Vide Vitry sur Seine (94400) Location Studio Vide Vitry sur Seine (94400) A partir de 695€
Besoin d'un logement à Vitry sur Seine ?
Demande d'informations et réservations
Les aides au logement
Financement étudiant
515€ CC