Accueil > Location T3 > Bourg en Bresse (01000) > 803 €CC

Logement étudiant à Bourg en Bresse

Calculer vos aides

Location T3 à Bourg en Bresse - Vide

803€ /mois cc
Ajouter au coup de coeur

Type de location : Location classique - Meublé : NonCalculez votre aide

Disponibilités : 14/11/2025
Disponibilités : 14/11/2025
Visite virtuelle
Logement étudiant T3 à Bourg en Bresse (01000) 1/2
Disponibilités : 14/11/2025
Afficher le numéro de téléphone
Demande d'informations

Demande d'informations

Délai de réponse moyen: 24-48h

Je n'ai pas de garant
Recevoir les annonces similaires par email

Informations et réservations

Délai de réponse moyen: 24-48h

Je n'ai pas de garant
Recevoir les annonces similaires par email

LE LOGEMENT

Type de réservation:Location classique
Type de bien:T3
Ameublement:Vide
Classe énergétique:NC
GES:NC
Colocation possible:Non

DESCRIPTION

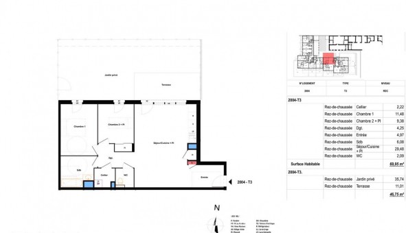
A BOURG EN BRESSE, dans la résidence neuve AU JARDIN DES DAMES, nous vous proposons ce T3 de ² situé au rez-de-chaussée. Il se compose d'une entrée, d'un séjour avec cuisine et accès à la terrasse ainsi qu'au jardin et d'un dégagement menant au WC séparées, au cellier, à la salle de bain ainsi qu'à deux chambres dont une avec placard. Une place de parking complète le lot. Eau chaude et chauffage individuels gaz. Entretien parties communes, entretien ascenseur, compris dans les provisions sur charges mensuelles et donnant lieu à une régularisation annuelle. Les honoraires de location TTC (à la charge du locataire) incluent le montant de rédaction des états des lieux facturé pour 209 euros TTC, après réalisation lors de l'entrée dans les lieux. Disponibilité prévisionnelle courant Novembre 2025. Plus de détails sur notre site AFEDIM. Logement neuf en cours de construction - DPE à venir
Les informations sur les risques auxquels ce bien est exposé sont disponibles sur le site Géorisques :
Référence annonce : 1426950737

GARANTIES ACCEPTÉES
Visale
Garantie Studapart
Garant physique
ALERTE MAIL
Définissez la location que vous recherchez et nous vous enverrons par email toutes les annonces correspondantes
QUARTIER ET TRANSPORTS (Attention: l'adresse et le quartier de ce bien n'ont pas été communiqués par l'annonceur)
POUR VOUS AIDER
Trouvez la CAF à Bourg en Bresse
Résidences étudiantes à Bourg en Bresse
Trouvez un job à proximité
Financez votre logement
Découvrir Bourg en Bresse
A quelles aides avez-vous droit ?
Simulation APL
Signaler un probleme
BIENS SIMILAIRES
Logement étudiant Location T2 Vide Bourg en Bresse (01000) Location T2 Vide Bourg en Bresse (01000) A partir de 700€
Logement étudiant Location Studio Vide Bourg en Bresse (01000) Location Studio Vide Bourg en Bresse (01000) A partir de 570€
Logement étudiant Location T3 Vide Bourg en Bresse (01000) Location T3 Vide Bourg en Bresse (01000) A partir de 820€
Besoin d'un logement à Bourg en Bresse ?
Demande d'informations et réservations
Les aides au logement
Financement étudiant
803€ CC