Accueil > Location T2 > Saint Nazaire (44600) > 599 €CC

Logement étudiant à Saint Nazaire

Calculer vos aides

Location T2 à Saint Nazaire - Vide

599€ /mois cc
Ajouter au coup de coeur

Type de location : Location classique - Meublé : NonCalculez votre aide

Disponibilités : 29/11/2025
Disponibilités : 29/11/2025
Visite virtuelle
Logement étudiant T2 à Saint Nazaire (44600) 1/2
Disponibilités : 29/11/2025
Afficher le numéro de téléphone
Demande d'informations

Demande d'informations

Délai de réponse moyen: 24-48h

Je n'ai pas de garant
Recevoir les annonces similaires par email

Informations et réservations

Délai de réponse moyen: 24-48h

Je n'ai pas de garant
Recevoir les annonces similaires par email

LE LOGEMENT

Type de réservation:Location classique
Type de bien:T2
Ameublement:Vide
Classe énergétique:NC
GES:NC
Colocation possible:Non

DESCRIPTION

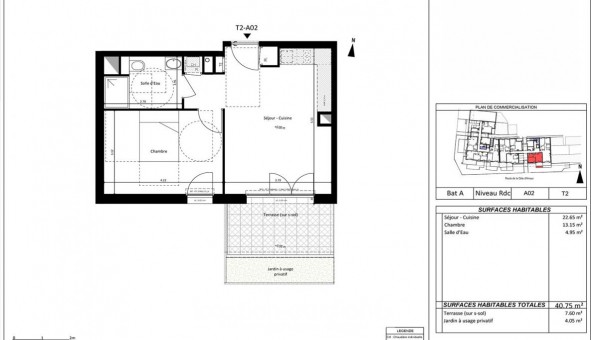
SAINT-NAZAIRE, nous vous proposons un appartement T2 (n°A02), d'une superficie de m² situé au RDC. Il se compose d'un séjour-cuisine avec placard de m² comprenant une cuisine aménagée et équipée (évier, réfrigérateur, hotte, plaques vitrocéramique) et donnant sur une terrasse de 7.6 m² prolongée d'un jardin de m², d'une chambre de m², et d'une salle d'eau avec WC. Emplacement parking n°P01. Chauffage et eau chaude individuels gaz. Entretiens ascenseur, espaces verts communs et entretien parties communes, compris dans les provisions sur charges mensuelles et donnant lieu à une régularisation annuelle. Les honoraires de location TTC (à la charge du locataire) incluent le montant de rédaction des états des lieux facturé 122 euros TTC, après réalisation lors de l'entrée dans les lieux. Disponibilité immédiatement. Plus de détails sur ce logement sur notre site internet AFEDIM.
Les informations sur les risques auxquels ce bien est exposé sont disponibles sur le site Géorisques :
Référence annonce : 1426986396

GARANTIES ACCEPTÉES
Visale
Garantie Studapart
Garant physique
ALERTE MAIL
Définissez la location que vous recherchez et nous vous enverrons par email toutes les annonces correspondantes
QUARTIER ET TRANSPORTS (Attention: l'adresse et le quartier de ce bien n'ont pas été communiqués par l'annonceur)
POUR VOUS AIDER
Trouvez la CAF à Saint Nazaire
Résidences étudiantes à Saint Nazaire
Trouvez un job à proximité
Financez votre logement
Liste des écoles à proximité
Découvrir Saint Nazaire
A quelles aides avez-vous droit ?
Simulation APL
Signaler un probleme
BIENS SIMILAIRES
Logement étudiant Location T2 Vide Saint Nazaire (44600) Location T2 Vide Saint Nazaire (44600) A partir de 578€
Logement étudiant Location T2 Vide Saint Nazaire (44600) Location T2 Vide Saint Nazaire (44600) A partir de 534€
Logement étudiant Location T2 Vide Saint Nazaire (44600) Location T2 Vide Saint Nazaire (44600) A partir de 639€
Besoin d'un logement à Saint Nazaire ?
Demande d'informations et réservations
Les aides au logement
Financement étudiant
599€ CC