Accueil > Location T2 > Nancy (54100) > 650 €CC

Logement étudiant à Nancy

Calculer vos aides

Location T2 à Nancy - Vide

650€ /mois cc
Ajouter au coup de coeur

Type de location : Location classique - Meublé : NonCalculez votre aide

Disponibilités : 02/11/2025
Disponibilités : 02/11/2025
Visite virtuelle
Logement étudiant T2 à Nancy (54100) 1/2
Disponibilités : 02/11/2025
Afficher le numéro de téléphone
Demande d'informations

Demande d'informations

Délai de réponse moyen: 24-48h

Je n'ai pas de garant
Recevoir les annonces similaires par email

Informations et réservations

Délai de réponse moyen: 24-48h

Je n'ai pas de garant
Recevoir les annonces similaires par email

LE LOGEMENT

Type de réservation:Location classique
Type de bien:T2
Ameublement:Vide
Classe énergétique:NC
GES:NC
Colocation possible:Non

DESCRIPTION

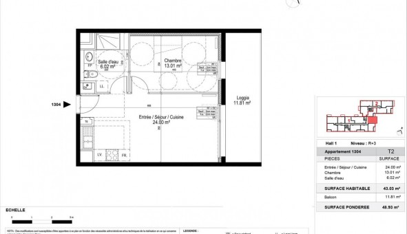
A NANCY - Dans la résidence neuve "LIBERTY", nous vous proposons un appartement T2 N°1304 de ² situé au 3ème étage. Il se compose d'une pièce de vie de 24m² avec cuisine ouverte et donnant sur une loggia de ², d'une chambre de ² et d'une salle d'eau avec WC. Cet appartement dispose d'une place de stationnement N°50. Chauffage et eau chaude individuel au gaz. Entretien parties communes, ascenseur et espaces verts communs, compris dans les provisions sur charges mensuelles et donnant lieu à une régularisation annuelle. Disponibilité prévisionnelle courant juillet 2025. Les honoraires de location TTC (à la charge du locataire) incluent le montant de rédaction des états des lieux facturé pour 128 euros TTC, après réalisation lors de l'entrée dans les lieux. Plus de détails sur notre site internet AFEDIM. Logement neuf en cours de construction - DPE à venir
Les informations sur les risques auxquels ce bien est exposé sont disponibles sur le site Géorisques :
Référence annonce : 1426925045

BIENS SIMILAIRES
Logement étudiant Location Studio Meublé Nancy (54100) Location Studio Meublé Nancy (54100) A partir de 610€
Logement étudiant Location Studio Meublé Nancy (54100) Location Studio Meublé Nancy (54100) A partir de 500€
Logement étudiant Location T3 Meublé Nancy (54100) Location T3 Meublé Nancy (54100) A partir de 1 500€
GARANTIES ACCEPTÉES
Visale
Garantie Studapart
Garant physique
ALERTE MAIL
Définissez la location que vous recherchez et nous vous enverrons par email toutes les annonces correspondantes
QUARTIER ET TRANSPORTS (Attention: l'adresse et le quartier de ce bien n'ont pas été communiqués par l'annonceur)
POUR VOUS AIDER
Trouvez la CAF à Nancy
Résidences étudiantes à Nancy
Trouvez un job à proximité
Financez votre logement
Liste des écoles à proximité
Découvrir Nancy
A quelles aides avez-vous droit ?
Simulation APL
Signaler un probleme
BIENS SIMILAIRES
Logement étudiant Location T4 Vide Nancy (54100) Location T4 Vide Nancy (54100) A partir de 1 060€
Logement étudiant Location Chambre Vide Nancy (54100) Location Chambre Vide Nancy (54100) A partir de 417€
Logement étudiant Location T2 Vide Nancy (54100) Location T2 Vide Nancy (54100) A partir de 600€
Besoin d'un logement à Nancy ?
Demande d'informations et réservations
Les aides au logement
Financement étudiant
650€ CC