Accueil > Location T2 > Chambéry (73000) > 607 €CC

Logement étudiant à Chambéry

Calculer vos aides

Location T2 à Chambéry - Vide

607€ /mois cc
Ajouter au coup de coeur

Type de location : Location classique - Meublé : NonCalculez votre aide

Disponibilités : 29/11/2025
Disponibilités : 29/11/2025
Visite virtuelle
Logement étudiant T2 à Chambéry (73000) 1/2
Disponibilités : 29/11/2025
Afficher le numéro de téléphone
Demande d'informations

Demande d'informations

Délai de réponse moyen: 24-48h

Je n'ai pas de garant
Recevoir les annonces similaires par email

Informations et réservations

Délai de réponse moyen: 24-48h

Je n'ai pas de garant
Recevoir les annonces similaires par email

LE LOGEMENT

Type de réservation:Location classique
Type de bien:T2
Ameublement:Vide
Classe énergétique:NC
GES:NC
Colocation possible:Non

DESCRIPTION

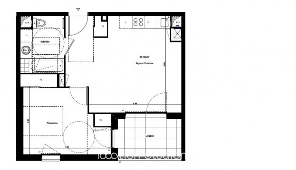
B307 L'OSMOSE : LAISSEZ-VOUS SEDUIRE PAR CE SPACIEUX T2 TRES BIEN AGENCE AU SEIN D'UNE RESIDENCE RECENTE BBC DE STANDING. Pièce de vie de 24m² avec cuisine US équipée et meublée (plaques vitro, four, hotte, meubles hauts et bas) ouvrant sur un balcon. Grande chambre de 13m² en sol parquet avec placards muraux aménagés. Salle de bain avec meuble sous vasque et sèche-serviettes. Garage double fermé en sous-sol sécurisé. CHAUFFAGE IND AU GAZ. VIDEOPHONE. PROXIMITE IMMEDIATE DE TOUS COMMERCES. Consommation d'énergie totale 298 EUR par an (prix moyens des énergies indexés au ).

Les informations sur les risques auxquels ce bien est exposé sont disponibles sur le site Géorisques : www. georisques. gouv. fr
Référence annonce : 1426986292

GARANTIES ACCEPTÉES
Visale
Garantie Studapart
Garant physique
ALERTE MAIL
Définissez la location que vous recherchez et nous vous enverrons par email toutes les annonces correspondantes
QUARTIER ET TRANSPORTS (Attention: l'adresse et le quartier de ce bien n'ont pas été communiqués par l'annonceur)
POUR VOUS AIDER
Trouvez la CAF à Chambéry
Résidences étudiantes à Chambéry
Trouvez un job à proximité
Financez votre logement
Liste des écoles à proximité
Découvrir Chambéry
A quelles aides avez-vous droit ?
Simulation APL
Signaler un probleme
BIENS SIMILAIRES
Logement étudiant Location T3 Vide Chambéry (73000) Location T3 Vide Chambéry (73000) A partir de 736€
Logement étudiant Location T2 Vide Chambéry (73000) Location T2 Vide Chambéry (73000) A partir de 672€
Logement étudiant Location Studio Vide Barberaz (73000) Location Studio Vide Barberaz (73000) A partir de 730€
Besoin d'un logement à Chambéry ?
Demande d'informations et réservations
Les aides au logement
Financement étudiant
607€ CC