Accueil > Location T2 > Aulnoy lez Valenciennes (59300) > 697 €CC

Logement étudiant à Aulnoy lez Valenciennes

Calculer vos aides

Location T2 à Aulnoy lez Valenciennes - Vide

697€ /mois cc
Ajouter au coup de coeur

Type de location : Location classique - Meublé : NonCalculez votre aide

Disponibilités : 29/11/2025
Disponibilités : 29/11/2025
Visite virtuelle
Logement étudiant T2 à Aulnoy lez Valenciennes (59300) 1/2
Disponibilités : 29/11/2025
Afficher le numéro de téléphone
Demande d'informations

Demande d'informations

Délai de réponse moyen: 24-48h

Je n'ai pas de garant
Recevoir les annonces similaires par email

Informations et réservations

Délai de réponse moyen: 24-48h

Je n'ai pas de garant
Recevoir les annonces similaires par email

LE LOGEMENT

Type de réservation:Location classique
Type de bien:T2
Ameublement:Vide
Classe énergétique:NC
GES:NC
Colocation possible:Non

DESCRIPTION

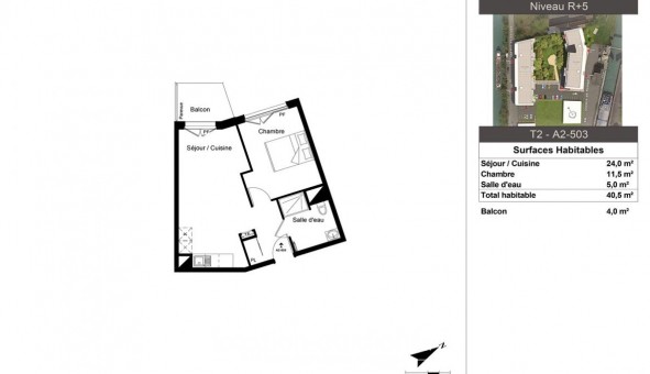
A VALENCIENNES, dans la résidence neuve "LES LUMIERES DE L'ESCAUT", nous vous proposons ce T2 de 41m². Il se compose d'une entrée avec placard, d'une salle d'eau avec WC, d'une chambre de ² ainsi que d'un séjour/cuisine de 24m² avec un accès au balcon de 4m². Une place de parking est disponible avec le logement. Chauffage et eau chaude collectif au gaz. Entretien parties communes, entretien ascenseur, compris dans les provisions sur charges mensuelles et donnant lieu à une régularisation annuelle. Les honoraires de location TTC (à la charge du locataire) incluent le montant de rédaction des états des lieux facturé pour 123 euros TTC, après réalisation lors de l'entrée dans les lieux. Disponibilité prévisionnelle Janvier 2026. Plus de détails sur notre site AFEDIM. Logement neuf en cours de construction - DPE à venir
Les informations sur les risques auxquels ce bien est exposé sont disponibles sur le site Géorisques :
Référence annonce : 1426964705

BIENS SIMILAIRES
Logement étudiant Location Studio Vide Valenciennes (59300) Location Studio Vide Valenciennes (59300) A partir de 470€
Logement étudiant Location Studio Meublé Valenciennes (59300) Location Studio Meublé Valenciennes (59300) A partir de 450€
Logement étudiant Location Studio Meublé Valenciennes (59300) Location Studio Meublé Valenciennes (59300) A partir de 360€
GARANTIES ACCEPTÉES
Visale
Garantie Studapart
Garant physique
ALERTE MAIL
Définissez la location que vous recherchez et nous vous enverrons par email toutes les annonces correspondantes
QUARTIER ET TRANSPORTS (Attention: l'adresse et le quartier de ce bien n'ont pas été communiqués par l'annonceur)
POUR VOUS AIDER
Trouvez la CAF à Aulnoy lez Valenciennes
Résidences étudiantes à Aulnoy lez Valenciennes
Trouvez un job à proximité
Financez votre logement
Liste des écoles à proximité
Découvrir Aulnoy lez Valenciennes
A quelles aides avez-vous droit ?
Simulation APL
Signaler un probleme
BIENS SIMILAIRES
Logement étudiant Location T4 Vide Aulnoy lez Valenciennes (59300) Location T4 Vide Aulnoy lez Valenciennes (59300) A partir de 1 000€
Logement étudiant Location T3 Vide Aulnoy lez Valenciennes (59300) Location T3 Vide Aulnoy lez Valenciennes (59300) A partir de 702€
Logement étudiant Location Chambre Vide Aulnoy lez Valenciennes (59300) Location Chambre Vide Aulnoy lez Valenciennes (59300) A partir de 954€
Besoin d'un logement à Aulnoy lez Valenciennes ?
Demande d'informations et réservations
Les aides au logement
Financement étudiant
697€ CC